Photos FAMILIA糀谷
Tokyo - 西糀谷4丁目4−17 FAMILIA糀谷
Situated in Tokyo, 1.2 km from Omori Hachiman Shrine and 1.8 km from Uramori Inari Shrine, FAMILIA糀谷 offers free WiFi and air conditioning. The property is2.7 km from Kifune Shrine, 2.8 km from Gonsho-ji Temple and 3 km from Tokujo-ji Temple. The property is non-smoking and is located 1.7 km from Miwa Itsukushima Shrine.
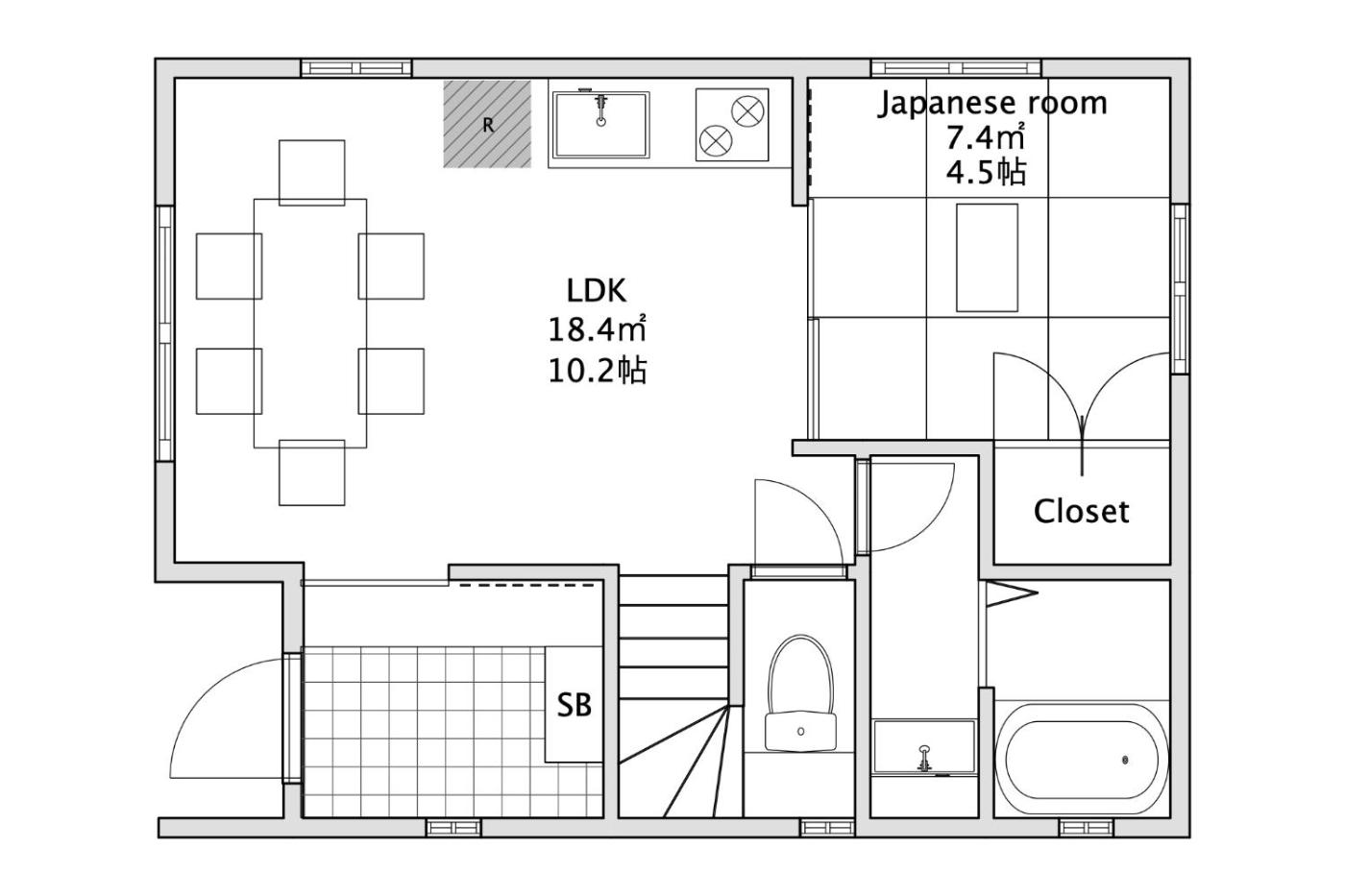
The spacious apartment features 4 separate bedrooms, 2 bathrooms, a fully equipped kitchen with a dining area and microwave, and a living room with a flat-screen TV. Towels and bed linen are available in the apartment. For added privacy, the accommodation features a private entrance.
Heiwa no Mori Park is 4.1 km from the apartment, while Heiwajima Park is 4.1 km from the property. Tokyo Haneda Airport is 3 km away.
The hotel day starts from hour 16:00 and ends at 10:00.
This property will not accommodate hen, stag or similar parties.
Apartment. Boasting a private entrance, this air-conditioned apartment comes with 1 living room, 4 separate bedrooms and 2 bathrooms with a bath and a shower. A kitchen fitted with a refrigerator, a microwave and an electric kettle is available for cooking and storing food. The spacious apartment features a flat-screen TV, a washing machine, tatami, a dining area as well as a quiet street view. The unit has 4 beds and 2 futons.
Additional information about the offer Japan - Tokyo - FAMILIA糀谷, opinions of holidaymakers as well as available dates can be found on the website our partner.
License number: 5健生発第10443号
Book now
Offer from our partner: Booking.com BG.24902









