Photos Liz5 Guest House Liz Nakazakicho
Osaka - Kita-ku Nakazaki 1-5-13
Situated less than 1 km from Taiyū-ji Temple and a 11-minute walk from Hokai-ji Temple in the centre of Osaka, Liz5 Guest House Liz Nakazakicho features accommodation with free WiFi and free private parking. With city views, this accommodation provides a balcony. The property is non-smoking and is located less than 1 km from Honden-ji Temple.
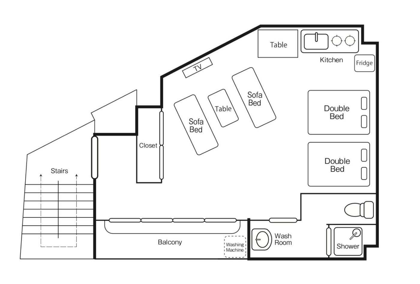
The air-conditioned apartment consists of 1 bedroom, a living room, a fully equipped kitchen with a microwave and a kettle, and 1 bathroom with a shower and slippers. Towels and bed linen are available in the apartment. For added privacy, the accommodation has a private entrance and is protected by full-day security.
Popular points of interest near the apartment include Hankyu Mens Osaka, Umeda Station and Catholic Osaka Umeda Church. Itami Airport is 19 km from the property.
The hotel day starts from hour 16:00 and ends at 10:00.
Please inform in advance of your expected arrival time. You can use the Special Requests box when booking, or contact the property directly with the contact details provided in your confirmation.
This property will not accommodate hen, stag or similar parties.
Apartment. Featuring a private entrance, this air-conditioned apartment comprises 1 living room, 1 separate bedroom and 1 bathroom with a shower and a hairdryer. Guests can make meals in the kitchen that comes with a stovetop, a refrigerator, kitchenware and a microwave. Boasting a balcony with city views, this apartment also provides a washing machine and a TV. The unit offers 4 beds.
Additional information about the offer Japan - Osaka - Liz5 Guest House Liz Nakazakicho, opinions of holidaymakers as well as available dates can be found on the website our partner.
License number: 大阪市指令 大保第 7294号
Book now
Offer from our partner: Booking.com BG.16365









