Photos Grandmas house - おばあちゃん家
Numazu - 本白銀町481−10
Located in Numazu in the Shizuoka region with Senbon Beach nearby, Grandmas house - おばあちゃん家 offers accommodation with free private parking. The apartment,in a building dating from 1951, is 29 km from Mount Daruma and 38 km from Hakone-Yumoto Station. The property is non-smoking and is22 km from Shuzen-ji Temple.
With free WiFi, this apartment provides a flat-screen TV, a washing machine and a fully equipped kitchen with a microwave and fridge. Towels and bed linen are provided in the apartment. The accommodation offers an air conditioning, a heating and a private bathroom.
Shuzenji Niji no Sato is 23 km from the apartment, while Fuji-Hakone-Izu-kokuritsu-kōen is 25 km away. Shizuoka Airport is 90 km from the property.
The hotel day starts from hour 16:00 and ends at 11:00.
Children aged 0–2 years can stay free of charge.
For each room, a maximum of 2 children aged 0–2 years can stay free of charge when using existing bedding even above the maximum room occupancy.This property will not accommodate hen, stag or similar parties.
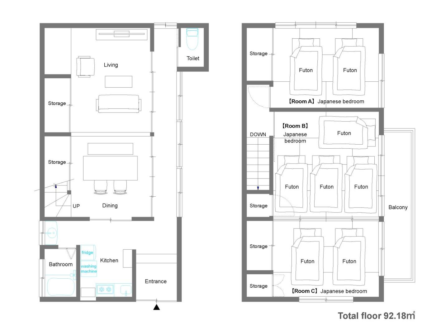
Japanese-Style Room. The spacious family room offers air conditioning, a washing machine, as well as a private bathroom featuring a bath and a shower. In the kitchen, guests will find a stovetop, a refrigerator, kitchenware and a microwave. The family room features tatami floors, a seating area with a flat-screen TV, a private entrance, a dining area, as well as a wardrobe. The unit offers 8 futons.
Additional information about the offer Japan - Numazu - Grandmas house - おばあちゃん家, opinions of holidaymakers as well as available dates can be found on the website our partner.
License number: M220046718
Book now
Offer from our partner: Booking.com BG.91034









