Photos KOSHIGOE seaside inn
Kamakura - Koshigoe 3-3-16 201
Located in Kamakura, 100 metres from Koshigoe Beach and 7.7 km from Tsurugaoka Hachimangu Shrine, KOSHIGOE seaside inn provides air-conditioned accommodation with a balcony and free WiFi. The apartment,in a building dating from 2015, is 24 km from Yokohama Marine Tower and 31 km from Nissan Stadium. The property is non-smoking and is24 km from Sankeien.
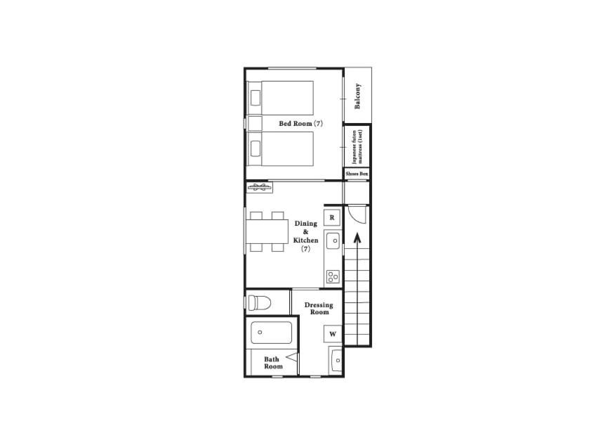
The apartment features 1 bedroom, a flat-screen TV, a fully equipped kitchen with a microwave and a toaster, a washing machine, and 1 bathroom with a bidet. The apartment offers bed linen, towels and laundry service.
Higashiyamata Park is 37 km from the apartment, while Motosumi-Bremen Shopping District is 37 km away. Tokyo Haneda Airport is 43 km from the property.
The hotel day starts from hour 15:00 and ends at 10:00.
This property will not accommodate hen, stag or similar parties.
Please inform in advance of your expected arrival time. You can use the Special Requests box when booking, or contact the property directly with the contact details provided in your confirmation.
One-Bedroom Apartment. Boasting a private entrance, this air-conditioned apartment features a kitchen, 1 bedroom and 1 bathroom with a bath and a shower. The fully equipped kitchen has a stovetop, a refrigerator, kitchenware and a microwave. This apartment features a washing machine, a tea and coffee maker, a flat-screen TV and a balcony. The unit has 3 beds.
Additional information about the offer Japan - Kamakura - KOSHIGOE seaside inn, opinions of holidaymakers as well as available dates can be found on the website our partner.
License number: 第020199号
Book now
Offer from our partner: Booking.com BG.18720









